
.jpg)
和平大廈簡介~
基地面積 :703坪
總戶數 :112戶
地上樓層:15層
地下樓層:2層
格局(房) :2 ~ 3房
使用區分:住宅區
公設比:33.6%
車位類型:平面停車
平面車位:112個
完工日期 :2023/04/30
建造執照: (108)府建管(建)字第0192545號
坐向 :朝南, 朝北
基地位址 :龍富二街
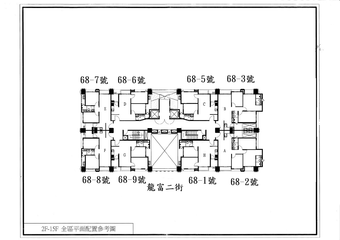
產品規劃
◼︎規劃一棟八拼,採用雙電梯雙樓梯設計 地上15樓、地下二層;住家每戶坪數23坪到32坪、2到3房,總戶數112戶,並且採一卡通管理,提高居家安全。
◼︎住家南北向規劃,透過精心設計,戶戶邊間,所有房間廁所間間通風採光,房間窗戶絕無對望、陽台各自獨立,絕佳的私密性。

員林義家人觀點~
信義與和平大廈皆採新古典外觀建築,跳脫之前建案風格,退縮的人行道完全還給行人使用,讓住戶可以優閒地欣賞景觀造景,聆聽蟲鳴鳥叫聲,體會生命繼起的意義,預計112年6月前完工,屆時來這邊走走,一定能感受到不一樣的景色。