員林永義房屋
員林新大樓
員林新大樓(各區)
惠農三多和平段(西北區)
鄉林圓頂
昌祐鴻景
昌祐鴻觀
昌祐員林匯
昌祐和平大廈
昌祐信義大廈
允將寓見花園
七碩四季灣
森泰蒔尚晴旅
七碩建設市鎮廳
橋愛段(北區)
合陽鼎峰
合陽尊峰
富川原大富
允將日日森
昌祐時代
磐榕昕
詠承 三福逸居
坤悅原鄰薈
大傅建設 橋愛段1196(未開案)
昕晟建設 橋愛段1131(未開案)
復興段(西區)
惠來劍橋
七碩東方閱
欣春桓御邸A
欣春桓御邸B
昌祐鴻福
築曜品越
德川家康 御品苑
逸竑逸璟
保田尚品
逸竑逸心
力興資產復興段1486(未開案)
青禾苑
精品建設復興段1398(未開案)
三條三和段(東區)
金永信 品員道
惠眾i幸福
惠眾享幸福
惠眾耀幸福
七碩朵朵雲
明煌一片天
川睦大沃天荷
漢英雲起
萬事晟員東首璽
助昇開發三條段940(未開案)
惠智建設三和段737(未開案)
和臻邸(條和街X條和十二街)
璞樹心敘
豐年明倫段(東南區)
惠眾GO幸福
毅品享薪家
千睿都NO1
璟德湛
惠眾豐富
金圓鑫品藏
翠堤春天
翔勝璞樹心悅
磐石帝堡NO6
昌祐員林大道
有春承青田芯
久保田 保田豐年
園仟建設電梯公寓
樂樂也愉悅
凱瀧幸福誠家NO2
康德大玥
益民溝皂段(南區)
七碩一號院
坤悅原鄰仁
安邑微風
華芳晴空墅
豐柏星中央
磐峰建設溝皂段309(未開案)
禾澄科技溝皂段935(未開案)
瓦中埔心段(西南區)
綺麗員林臻美
允將日日新
惠眾讚幸福
豪品賀里漾
坤悅心里程
璟德湛2
員林後站
寶斗龍建設公園五號院
磐峰中山讚
金馥開發 康德至善
奕富建設牡丹園堡
鎰興永恆
記銘青石上
大椿錢匯通2
寶爵金鑽
華芳南平雅居
昱曜建設靜修段143
員林市區
昌祐鴻璽
金陽信富玉
磐石帝堡NO5
聚邦大同賦邑
豪品賀里昂
祥瑞首綻
泰和茂昕居
長虹天際
元盛三湛ABC區
欣春建設和平段1027(未開案)
長虹建設民生段476(未開案)
員林郊區
泰和茂巧寓
惠眾幸福A+
滬億瑞禾
國雄楓丹白露
員林A1 晴逸心苑
敦斐好好
員林透天建案
惠農三多和平段(西北區 )
曜敦峰
藝術家
桂冠1
桂冠2
公園綠璽
龍富城欣
龍燈富悅
橋愛段
薇閣美地
升之泰
藏碧NO9
松築
凱瀧
雲詠NO2
三謙苑
大道曉築
海德公園NO2
藏碧NO8
運動家
正源幸福
臻築
澄石青恬
知築
磐燁馥玉
德川家康
大傅鑫匯NO2
富麗
世界之光
德川家康6
匯聚仰德
三條三和段
璟德大雋1
璟德大雋3
凱瀧印象2
春豐典藏
昕晟馥桂
昕晟京艷
昕晟京馥苑
昕晟京彩
昕晟蔚來
鎰興美德
鎰興三條
綠園墅
羣翔御墅
富儷首璽
大器泓品
又見大可以
華倫大寶
磐石帝堡3
東方苑
復興段瓦中
寶唐盛世
雲開綠風
富都首璽
辰品馥鈺
昕晨京都院
寶格麗
青禾階
德川家康NO5
瓦窯北段
泓品大囍
益民 溝皂 明倫 豐年段
德川家康
大傅鑫匯
可以居
緣林
東宇首璽
里賀
海德公園
樸石
全家福3
全家福3
鏡員林
馥鈺
棕梠湖岸
富儷首璽5
富御5
富御6
藏蘊
雲詠1
豐年富悅
凱瀧豐年
御南苑
愛丁堡7
南彰新大樓
大村鄉
精選物件
員勝店-精選物件
豐勝店-精選物件
影音專區
關於義家人
關於義家人
聯絡我們
Home
員林新大樓
橋愛段(北區)
合陽尊峰
合陽尊峰
合陽尊峰
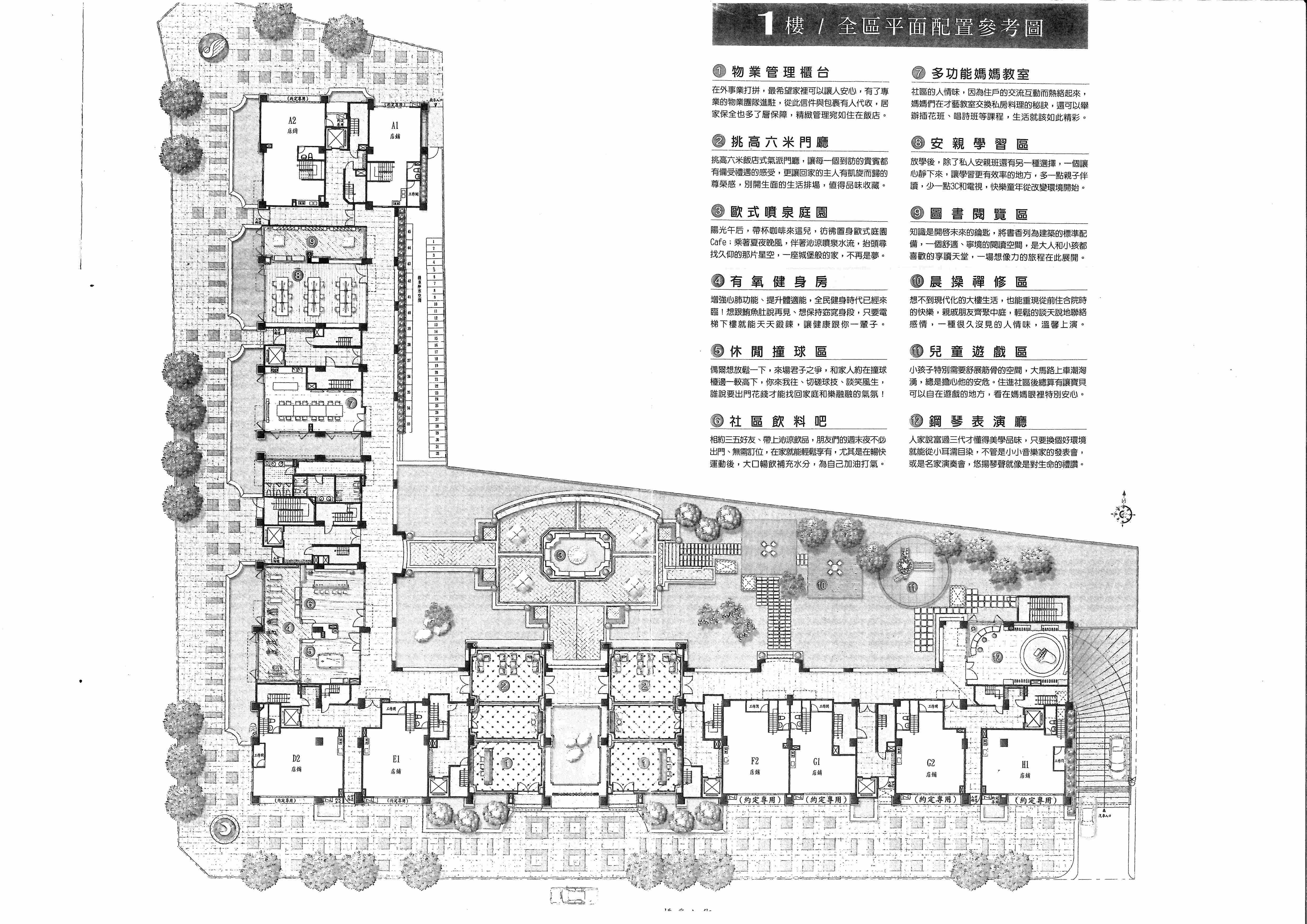
114/3~115/3實價登錄行情參考
合陽尊峰基本介紹~
地址:員林市橋愛七街
基地面積:約1797坪
土地分區:住宅區
建案規劃:八棟 、住197戶 、店8戶 共207戶
建築完工日:2019/5
車位總數:總數208個
公設比:32%
建設公司:合陽建設
營造公司:洛城營造有限公司
建坪:住33.0 ~ 53.0坪
房間規劃:二房(約33坪)、三房(約40坪)、四房(約50坪)
樓層規劃:地上 13.0層 地下2層
•公共設施:接待大廳、歐式中庭花園、交誼廳、閱覽室、健身房、桌球室、兒童遊戲區、廚藝教室、信箱區、禪修區、戀琴表演廳
員林義家人觀點~
合陽尊峰位於橋愛段北側,地形為L型,建案規畫從2房到四房都有,每戶採光都不錯,尤其是D棟到H棟朝南座向視野更是一級棒,前方大多是五樓透天,因此客廳可遠眺圓林園,後方房間看中庭及一大片農田,尊峰建築結構採連續壁+地中壁+筏式基礎,因為地基有做加強,因此住家的臥室皆採實牆隔間,隔音效果比輕隔間好很多,尊峰所處位置附近透天豪宅林立,未來商家進駐機會不大,生活採買及飲食勢必須到員林市區,但也因此本區也相對寧靜,可以慢慢散步欣賞本區的豪宅建築。